Casa semindipendente in Vendita a Calizzano
Classe energetica
EP glnr: 325.56 kwh/m²
Calizzano - A soli 28 km da Finale Ligure, raggiungibile in circa 30/40 minuti attraverso il colle del Melogno dal quale si può godere di una splendida vista sulla costa ligure, in pieno centro paese, proponiamo in Vendita questa casa, in ottime condizioni, libera su tre lati con cortile condiviso con altra proprietà ma chiuso da cancello.
La casa si trova in via IV novembre, comodissima ai servizi con ingresso direttamente dalla via centrale.
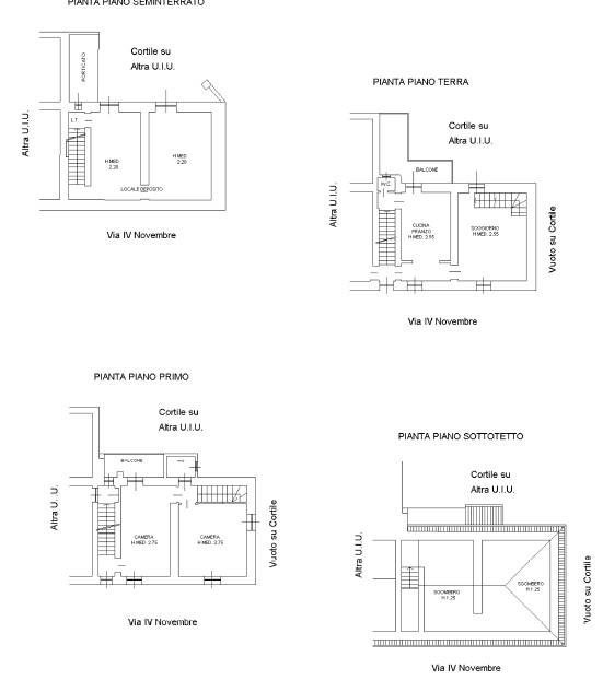
Al piano terreno un piccolo bagno di servizio, una cucina abitabile con un balcone situato sul retro della casa ed un soggiorno dal quale si accede, mediante una bella scala a vista, al piano superiore dove si trovano le due camere da letto, un secondo bagno con doccia ed un secondo balcone.
Al piano terra si trova una scala attraverso la quale si accede al piano inferiore dove troviamo due grandi locali con accesso diretto al cortile comune privato.
Sebbene situata nel pieno centro di Calizzano, la casa è luminosissima: da un lato si ha la vista aperta sulla via principale, dall’altro lato sulle montagne.
Posizione ideale per chi desidera una sistemazione nel verde di Calizzano ma comodissima a tutti i servizi, senza alcuna necessità di utilizzare l’auto.
Riscaldamento autonomo, pronta per essere abitata fin da subito.
Contattaci
Nadia Immobiliare
Via Roma n.13B
Sassello (SV)
Telefono 3482450465
Cellulare 3471042501
nadia@nadiaimmobiliare.com
Immobili simili
Ultimo aggiornamento 23-01-2026

















































